Enter your address or APN to check if this home fits on your property
Enter your property street address or APN

High Tech Housing
High Tech Housing is an affordable home dealer with more than 50 years of sales and experience. We offer manufactured and modular homes from Clayton Homes, Master Craft Homes, New Era Homes, and Penn West Homes. Give us a call today!
Dealer License #:
Images of homes are solely for illustrative purposes and should not be relied upon. Images may not accurately represent the actual condition of a home as constructed, and may contain options which are not standard on all homes.
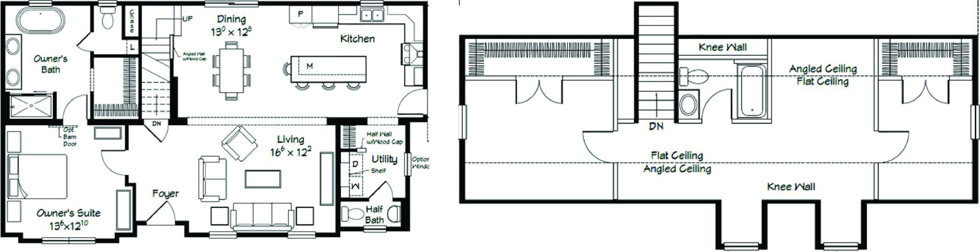
3 Bed | 2.5 Bath | 2,088 Sq. Ft. | 30' x 48'
3 Bed | 2.5 Bath | 1,821 Sq. Ft. | 27' 4" x 49' 4"
3 Bed | 2 Bath | 2,113 Sq. Ft. | 27' 4" x 50'