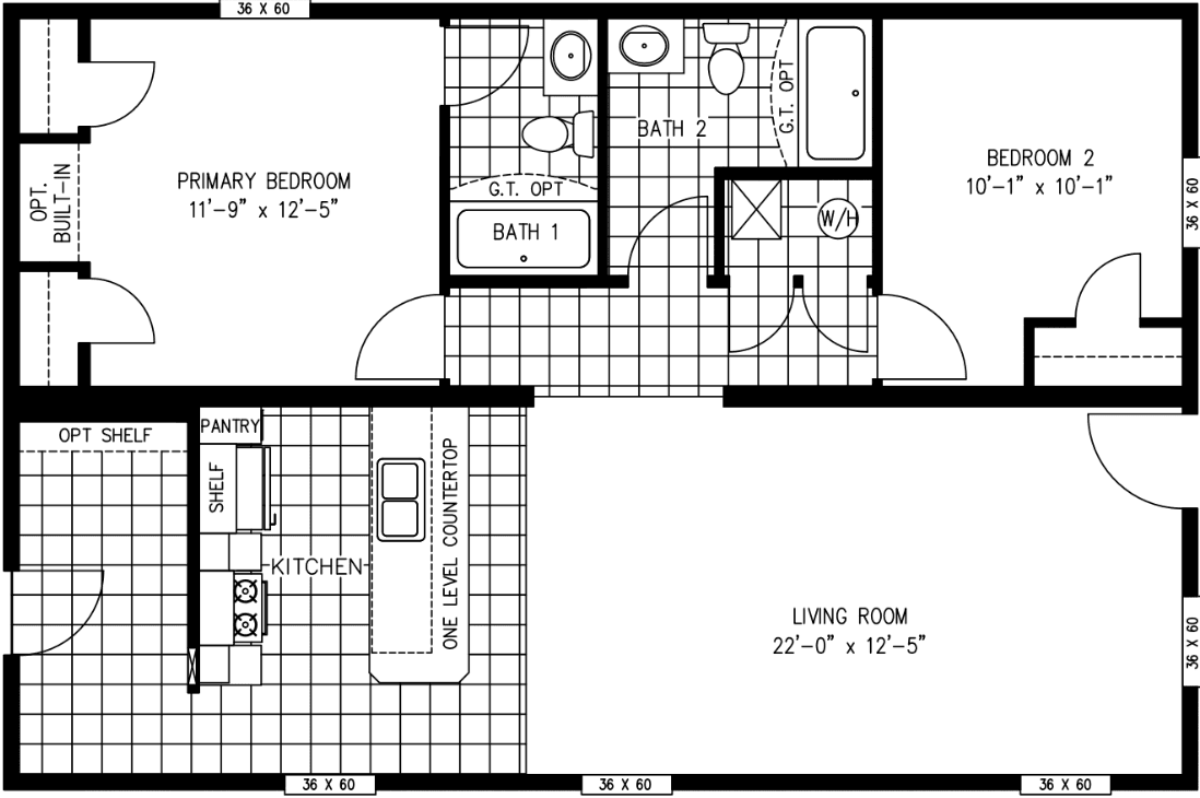
Homes | Jade 40